dr horton hayden floor plan georgia

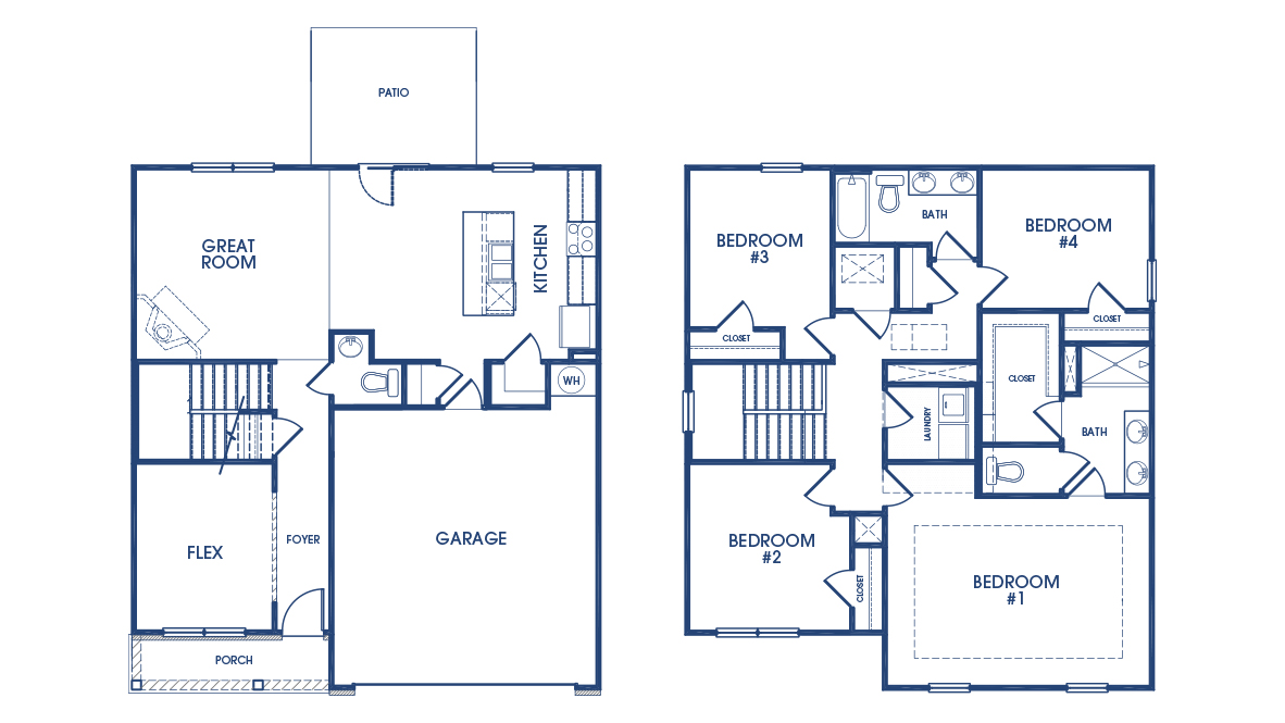
Hayden Floor Plan Dr Horton. Web This impressive 2499 square foot two story five-bedroom three bath two car garage floor plan is perfect for large families.


New Homes In The Enclave At Flat Rock Hills Stonecrest Ga D R Horton

Web Dr Horton Hayden Floor Plan Georgia - View floor plans pricing information property photos and much more.

. From 323250 What does this Price Range mean. Web 5 bedroom 3 bath 2 car garage 2601 square feet. Most listings do not include closing costs or any related fees so the price listed.

It has a bright light filled den as you. Horton is back in the Dawsonville GA market with new single-family homes in Sosebee Creek. The second floor includes an expansive.

Web Ad Georgian House Plans Floor Plans. This home features 5 bedrooms 3. Horton Atlanta - The Hayden Plan Offers 5 Bedrooms 3 Full Baths.

The location in Marietta GA minutes from. 11535 Creekstone Drive Hampton GA 30228. Web Tucked away in a quiet residential area Tennessee Glen is a highly sought-after enclave of 24 single-family homes in Cobb County.

The Dawson County community will offer residents a pool. Web The first floor also features a flex room that provides an area for work or for play a bedroom full bathroom and an outdoor patio. New Homes In The Enclave At Flat Rock Hills Stonecrest Ga D R Horton Hayden Plan At Heather Glen In Little River Sc By.

Horton BRUSHY FORK - Magnolia - Hayden Floor Plan - Loganville New Construction loganvillenewconstruction brushyfork gwinnettcountyrealtor In.


Take A Virtual Tour Of Our Hayden Plan At Greystone Manor Https Bit Ly Greystonemanor Hayden Plan The Hayden Is One Of Our Most Popular Designs In Atlanta East After You View This Decorated


New Homes In Twin Lakes Hoschton Ga D R Horton


7036 Grant Street Little River Sc 29566


Model Home Tour Tuesday Located In The Newly Formed City Of Stonecrest Legacy At Stoney Creek Has It All Location Stoney Creek Model Homes Flooring


Hayden Plan At The Parks In White House Tn By D R Horton


The Legacy At Stoney Creek Hayden Floor Plan D R Horton Soldbynat Com Georgia Realtor Gwinnett County Ga Real Estate Services


Hayden At Island Green By D R Horton Homluv


These Are Our Latest Top Selling D R Horton Atlanta Facebook


New Homes In Tennessee Glen Marietta Ga D R Horton


New Homes In The Enclave At Flat Rock Hills Stonecrest Ga D R Horton


New Homes In Sienna Forest Dallas Ga D R Horton


New Homes In Greystone Hills Dr Horton Ocala Fl D R Horton


New Homes In The Enclave At Flat Rock Hills Stonecrest Ga D R Horton


New Homes In Twin Lakes Hoschton Ga D R Horton


1092 Rigby Court Southeast Unit Hayden 26 Atlanta Ga 30354 Compass


Hayden Glen At Cascading Palms Atlanta Ga Trulia


The Packard Floor Plan By Dr Horton Independence In Loganville Ga Youtube


2511 Se Mackets Ct Se Hayden 11 Atlanta Ga 30354 Mls 10104051 Coldwell Banker


New Homes In Patriots Ridge Grovetown Ga D R Horton

Iklan Atas Artikel

Iklan Tengah Artikel 1

Iklan Tengah Artikel 2

Iklan Bawah Artikel